Met een eigen account kun je panden volgen, opslaan als favoriet, je zoekprofiel opslaan en jouw eigen notities bij een huis maken.
Algemeen
Herenstraat 25 en 25 A, 3431 CV te Nieuwegein.
Algemeen
Het betreft een pand met cultuurhistorische waarde, bestaand uit twee bouwlagen, met een winkelruimte en (verhuurde) woonruimte boven de winkel, direct gelegen aan het Merwedekanaal in de oude dorpskern van Jutphaas tegenover Park Rijnhuizen. Het achterste deel van de begane grond mag worden getransformeerd naar wonen.
In de nabijhe... Meer informatie
Algemeen
Het betreft een pand met cultuurhistorische waarde, bestaand uit twee bouwlagen, met een winkelruimte en (verhuurde) woonruimte boven de winkel, direct gelegen aan het Merwedekanaal in de oude dorpskern van Jutphaas tegenover Park Rijnhuizen. Het achterste deel van de begane grond mag worden getransformeerd naar wonen.
In de nabijhe... Meer informatie
-
Kenmerken
Alle kenmerken Type object Winkelruimte Bouwperiode 1938 Aangeboden sinds Maandag 26 mei 2025 -
Locatie
Kenmerken
| Overdracht | |
|---|---|
| Referentienummer | 00278 |
| Vraagprijs | € 470.000,- k.k. |
| Aanvaarding | In overleg |
| Aangeboden sinds | Maandag 26 mei 2025 |
| Laatste wijziging | Donderdag 19 maart 2026 |
| Bouw | |
|---|---|
| Type object | Winkelruimte |
| Soort bouw | Bestaande bouw |
| Bouwperiode | 1938 |
| Keurmerken | Bouwkundige keuring |
| Oppervlaktes en inhoud | |
|---|---|
| Perceeloppervlakte | 188 m² |
| VVO | 182 m² |
| In units vanaf | 182 m² |
| Verkoopoppervlakte | 91 m² |
| Indeling | |
|---|---|
| Aantal bouwlagen | 1 |
| Energieverbruik | |
|---|---|
| Energielabel | A++ |
| Kadastrale gegevens | |
|---|---|
| Kadastrale aanduiding | Jutphaas B 1193 |
| Perceeloppervlakte | 175 m² |
Beschrijving
Herenstraat 25 en 25 A, 3431 CV te Nieuwegein.
Algemeen
Het betreft een pand met cultuurhistorische waarde, bestaand uit twee bouwlagen, met een winkelruimte en (verhuurde) woonruimte boven de winkel, direct gelegen aan het Merwedekanaal in de oude dorpskern van Jutphaas tegenover Park Rijnhuizen. Het achterste deel van de begane grond mag worden getransformeerd naar wonen.
In de nabijheid zijn b.v. een Kruidvat en diverse horecagelegenheden en winkels te vinden.
Bereikbaarheid
Het object is goed bereikbaar via de A2, A12 en de A27 (afrit Nieuwegein-Zuid). Er zijn bushaltes op circa 500 meter afstand met o.a. een directe verbinding naar Vianen, Zeist en Utrecht CS.
Vloeroppervlak
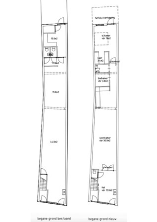
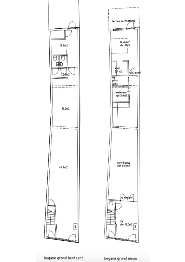
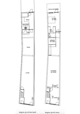
Het totale verhuurbare vloeroppervlak bedraagt circa 182,4 m², als volgt verdeeld:
- begane grond winkelruimte: circa 91,1 m²;
- 1e verdieping woonruimte: circa 63,1 m²;
- buitenruimte: circa 28,2 m².
Het object is conform de Branche Brede Meetinstructie ingemeten. De Meetinstructie sluit verschillen in meetuitkomsten niet volledig uit, door bijvoorbeeld interpretatieverschillen, afrondingen of beperkingen bij het uitvoeren van de meting. Echter, afwijkingen of interpretatieverschillen vormen geen aanleiding tot verrekening.
Kadastrale gegevens
Gemeente: Jutphaas
Sectie: B
Nummer: 1193
Groot: 188 m²
Bouwjaar
Oorspronkelijk bouwjaar 1910 volgens BAG.
Opleveringsniveau en voorzieningen
Het object wordt in de huidige staat opgeleverd met de volgende voorzieningen:
Winkelruimte:
- deels verbouwd in 2024;
- steenachtige vloer v.v. vloertegels;
- verlaagd systeem plafond;
- meterkast v.v. gas en elektra;
- keuken v.v. inrichting;
- Wanden v.v. stucwerk;
- toiletruimten geheel betegeld en voorzien van wastafel;
- C.V. Intergas 2024.
Woonruimte:
- Houten vloer;
- Wanden stucwerk / steen strips;
- Plafond stucwerk;
- balkon/buitenruimte circa 28,2 m²;
- badkamer;
- toilet;
- verwarming middels radiatoren;
- keuken.
Buitenterrein:
- tuin circa 75 m².
Parkeren
Parkeren is gratis op de openbare weg.
Bestemming
Gemengde doeleinden 1.
Detailhandel, dienstverlening, horeca cat. 1 en 2, ambachtelijke bedrijven, maatschappelijke doeleinden, wonen al dan niet met huis verbonden beroep en kantoren.
Horeca bezorgen of afhalen is niet toegestaan.
Op de verdieping is wonen toegestaan al dan niet met huis verbonden beroep, horeca in de categorie 1 b, kantoor.
Een bestemming kan aan verandering onderhevig zijn. Koper dient zelf informatie in te winnen bij de gemeente omtrent de geschiktheid van het object voor het beoogde gebruik.
Rechten en verplichtingen
Voor de kwalitatieve rechten en verplichtingen, erfdienstbaarheden en/of kettingbedingen verwijzen wij naar de laatste akte van levering welke op aanvraag beschikbaar is.
Zakelijke lasten en belastingen
- ozb EUR 809,57;
- waterschapslasten EUR 96,11;
Vraagprijs
EUR 470.000,- kosten koper.
Alle kosten verbonden aan de eigendomsoverdracht, waaronder te verstaan de notariële kosten, kadastraal recht, de verschuldigde overdrachtsbelasting, de verschuldigde omzetbelasting en de kosten wegens de levering en overdracht van het verkochte, zijn voor rekening van koper.
Huurstroom woning
EUR 630,- per maand, energiekosten EUR 95,-. Huur wordt niet met BTW belast.
Aanvaarding/levering
De onroerende zaak wordt geleverd in deels verhuurde staat - bovenwoning is verhuurd, horeca-/winkelruimte is onverhuurd-, in de huidige gebruikte, bouwkundige, technische, milieukundige, juridische staat, de staat “as-is” zonder enige garanties, met alle daarbij behorende rechten en aanspraken, lasten en beperkingen, zichtbare en onzichtbare gebreken, heersende en lijdende erfdienstbaarheden, en kwalitatieve rechten en plichten, doch vrij van hypotheken, beslagen en inschrijvingen daarvan. De koper dient kennis te nemen van de inhoud van de laatste akte van levering. Koper is op de hoogte van het bouwjaar en de huidige bouwkundige staat en zal zich niet beroepen op eventueel achterstallig onderhoud jegens verkoper.
Milieu bodemloket
Het is de verkoper niet bekend dat het registergoed verontreiniging bevat die ten nadele strekt van het gebruik waarvoor de grond bestemd is, dan wel kan leiden tot een verplichting tot sanering of andere maatregelen. Het is verkoper niet bekend dat er ondergrondse tanks voor het opslaan van (vloei-)stoffen aanwezig zijn en dat er (bouw-) materialen zijn toegepast die op enigerlei wijze schadelijk zijn voor mens of milieu of agressief zijn ten opzichte van andere toegepaste materialen. Verontreinigings- en restrisico’s van het bijbehorende grond en grondwater gaan over op koper. Koper vrijwaart verkoper voor alle aanspraken van derden, waaronder de overheid, ter zake de milieukundige toestand van het registergoed.
Notariskantoor
Koper is vrij om te bepalen welk notariskantoor zal worden belast met het opmaken van de koopovereenkomst en de notariële akte van levering.
Koopovereenkomst
In de op te maken koopovereenkomst zullen de gebruikelijke bepalingen worden opgenomen. Daarnaast zullen de koopovereenkomst en de akte van levering die bedingen bevatten die de notaris nodig acht en normaal gebruikelijk zijn.
Zekerheidsstelling
Koper dient binnen 14 dagen na ondertekening van de koopovereenkomst een bankgarantie te stellen van 10% van de koopsom aan het notariskantoor.
Ondermaat/overmaat
Indien de opgegeven grootte (ondermaat/overmaat) van het registergoed niet juist is, ontleent geen van beide partijen daaraan rechten.
Baten en lasten
Alle baten en lasten met betrekking tot het registergoed worden op de datum van eigendomsoverdracht (naar rato) verrekend.
Energieprestatiecertificaat
De winkelruimte heeft energielabel A++, geldig tot 9-5-2035.
De woonruimte heeft energielabel F, geldig tot 9-5-2035.
Transportdatum
In overleg.
Wwft
Ons kantoor en onze dienstverlening vallen onder de Wwft (Wet ter voorkoming van witwassen en financieren van terrorisme). Wij dienen daardoor van iedere koper verplicht de identiteit vast te stellen en te verifiëren alsmede de herkomst van het vermogen te onderzoeken alvorens een onderhandeling aan te kunnen gaan.
Bij een bieding van een natuurlijk persoon ontvangen wij dan ook graag een kopie legitimatiebewijs en een verklaring omtrent de herkomst van het vermogen.
Bij een bieding van een rechtspersoon ontvangen wij graag een recent uittreksel Kamer van Koophandel, UBO verklaring, verklaring herkomst vermogen en de identiteitsbewijzen van alle UBO('s). Wij zijn verplicht een cliëntonderzoek uit te voeren naar alle UBO's alvorens biedingen in behandeling te kunnen nemen.
Bijzonderheden
Verkoper behoudt zich alle rechten voor en heeft op geen enkele wijze verplichtingen jegens een gegadigde die in de gelegenheid is gesteld om een bieding uit te brengen. Verkoper is derhalve ook vrij om zonder opgaaf van redenen de verkoopprocedure te wijzigen dan wel te beëindigen en/of niet op een bieding in te gaan en/of een bieding wel of niet te accepteren, ongeacht of deze de hoogst voorgestelde koopprijs inhoudt, alsmede het evalueren c.q. beoordelen van condities en voorwaarden van enige bieding.
De vermelde informatie is van algemene aard en is niet meer dan een uitnodiging om in onderhandeling te treden. Aan de inhoud van deze informatie kunnen geen rechten worden ontleend.
Algemeen
Het betreft een pand met cultuurhistorische waarde, bestaand uit twee bouwlagen, met een winkelruimte en (verhuurde) woonruimte boven de winkel, direct gelegen aan het Merwedekanaal in de oude dorpskern van Jutphaas tegenover Park Rijnhuizen. Het achterste deel van de begane grond mag worden getransformeerd naar wonen.
In de nabijheid zijn b.v. een Kruidvat en diverse horecagelegenheden en winkels te vinden.
Bereikbaarheid
Het object is goed bereikbaar via de A2, A12 en de A27 (afrit Nieuwegein-Zuid). Er zijn bushaltes op circa 500 meter afstand met o.a. een directe verbinding naar Vianen, Zeist en Utrecht CS.
Vloeroppervlak
Het totale verhuurbare vloeroppervlak bedraagt circa 182,4 m², als volgt verdeeld:
- begane grond winkelruimte: circa 91,1 m²;
- 1e verdieping woonruimte: circa 63,1 m²;
- buitenruimte: circa 28,2 m².
Het object is conform de Branche Brede Meetinstructie ingemeten. De Meetinstructie sluit verschillen in meetuitkomsten niet volledig uit, door bijvoorbeeld interpretatieverschillen, afrondingen of beperkingen bij het uitvoeren van de meting. Echter, afwijkingen of interpretatieverschillen vormen geen aanleiding tot verrekening.
Kadastrale gegevens
Gemeente: Jutphaas
Sectie: B
Nummer: 1193
Groot: 188 m²
Bouwjaar
Oorspronkelijk bouwjaar 1910 volgens BAG.
Opleveringsniveau en voorzieningen
Het object wordt in de huidige staat opgeleverd met de volgende voorzieningen:
Winkelruimte:
- deels verbouwd in 2024;
- steenachtige vloer v.v. vloertegels;
- verlaagd systeem plafond;
- meterkast v.v. gas en elektra;
- keuken v.v. inrichting;
- Wanden v.v. stucwerk;
- toiletruimten geheel betegeld en voorzien van wastafel;
- C.V. Intergas 2024.
Woonruimte:
- Houten vloer;
- Wanden stucwerk / steen strips;
- Plafond stucwerk;
- balkon/buitenruimte circa 28,2 m²;
- badkamer;
- toilet;
- verwarming middels radiatoren;
- keuken.
Buitenterrein:
- tuin circa 75 m².
Parkeren
Parkeren is gratis op de openbare weg.
Bestemming
Gemengde doeleinden 1.
Detailhandel, dienstverlening, horeca cat. 1 en 2, ambachtelijke bedrijven, maatschappelijke doeleinden, wonen al dan niet met huis verbonden beroep en kantoren.
Horeca bezorgen of afhalen is niet toegestaan.
Op de verdieping is wonen toegestaan al dan niet met huis verbonden beroep, horeca in de categorie 1 b, kantoor.
Een bestemming kan aan verandering onderhevig zijn. Koper dient zelf informatie in te winnen bij de gemeente omtrent de geschiktheid van het object voor het beoogde gebruik.
Rechten en verplichtingen
Voor de kwalitatieve rechten en verplichtingen, erfdienstbaarheden en/of kettingbedingen verwijzen wij naar de laatste akte van levering welke op aanvraag beschikbaar is.
Zakelijke lasten en belastingen
- ozb EUR 809,57;
- waterschapslasten EUR 96,11;
Vraagprijs
EUR 470.000,- kosten koper.
Alle kosten verbonden aan de eigendomsoverdracht, waaronder te verstaan de notariële kosten, kadastraal recht, de verschuldigde overdrachtsbelasting, de verschuldigde omzetbelasting en de kosten wegens de levering en overdracht van het verkochte, zijn voor rekening van koper.
Huurstroom woning
EUR 630,- per maand, energiekosten EUR 95,-. Huur wordt niet met BTW belast.
Aanvaarding/levering
De onroerende zaak wordt geleverd in deels verhuurde staat - bovenwoning is verhuurd, horeca-/winkelruimte is onverhuurd-, in de huidige gebruikte, bouwkundige, technische, milieukundige, juridische staat, de staat “as-is” zonder enige garanties, met alle daarbij behorende rechten en aanspraken, lasten en beperkingen, zichtbare en onzichtbare gebreken, heersende en lijdende erfdienstbaarheden, en kwalitatieve rechten en plichten, doch vrij van hypotheken, beslagen en inschrijvingen daarvan. De koper dient kennis te nemen van de inhoud van de laatste akte van levering. Koper is op de hoogte van het bouwjaar en de huidige bouwkundige staat en zal zich niet beroepen op eventueel achterstallig onderhoud jegens verkoper.
Milieu bodemloket
Het is de verkoper niet bekend dat het registergoed verontreiniging bevat die ten nadele strekt van het gebruik waarvoor de grond bestemd is, dan wel kan leiden tot een verplichting tot sanering of andere maatregelen. Het is verkoper niet bekend dat er ondergrondse tanks voor het opslaan van (vloei-)stoffen aanwezig zijn en dat er (bouw-) materialen zijn toegepast die op enigerlei wijze schadelijk zijn voor mens of milieu of agressief zijn ten opzichte van andere toegepaste materialen. Verontreinigings- en restrisico’s van het bijbehorende grond en grondwater gaan over op koper. Koper vrijwaart verkoper voor alle aanspraken van derden, waaronder de overheid, ter zake de milieukundige toestand van het registergoed.
Notariskantoor
Koper is vrij om te bepalen welk notariskantoor zal worden belast met het opmaken van de koopovereenkomst en de notariële akte van levering.
Koopovereenkomst
In de op te maken koopovereenkomst zullen de gebruikelijke bepalingen worden opgenomen. Daarnaast zullen de koopovereenkomst en de akte van levering die bedingen bevatten die de notaris nodig acht en normaal gebruikelijk zijn.
Zekerheidsstelling
Koper dient binnen 14 dagen na ondertekening van de koopovereenkomst een bankgarantie te stellen van 10% van de koopsom aan het notariskantoor.
Ondermaat/overmaat
Indien de opgegeven grootte (ondermaat/overmaat) van het registergoed niet juist is, ontleent geen van beide partijen daaraan rechten.
Baten en lasten
Alle baten en lasten met betrekking tot het registergoed worden op de datum van eigendomsoverdracht (naar rato) verrekend.
Energieprestatiecertificaat
De winkelruimte heeft energielabel A++, geldig tot 9-5-2035.
De woonruimte heeft energielabel F, geldig tot 9-5-2035.
Transportdatum
In overleg.
Wwft
Ons kantoor en onze dienstverlening vallen onder de Wwft (Wet ter voorkoming van witwassen en financieren van terrorisme). Wij dienen daardoor van iedere koper verplicht de identiteit vast te stellen en te verifiëren alsmede de herkomst van het vermogen te onderzoeken alvorens een onderhandeling aan te kunnen gaan.
Bij een bieding van een natuurlijk persoon ontvangen wij dan ook graag een kopie legitimatiebewijs en een verklaring omtrent de herkomst van het vermogen.
Bij een bieding van een rechtspersoon ontvangen wij graag een recent uittreksel Kamer van Koophandel, UBO verklaring, verklaring herkomst vermogen en de identiteitsbewijzen van alle UBO('s). Wij zijn verplicht een cliëntonderzoek uit te voeren naar alle UBO's alvorens biedingen in behandeling te kunnen nemen.
Bijzonderheden
Verkoper behoudt zich alle rechten voor en heeft op geen enkele wijze verplichtingen jegens een gegadigde die in de gelegenheid is gesteld om een bieding uit te brengen. Verkoper is derhalve ook vrij om zonder opgaaf van redenen de verkoopprocedure te wijzigen dan wel te beëindigen en/of niet op een bieding in te gaan en/of een bieding wel of niet te accepteren, ongeacht of deze de hoogst voorgestelde koopprijs inhoudt, alsmede het evalueren c.q. beoordelen van condities en voorwaarden van enige bieding.
De vermelde informatie is van algemene aard en is niet meer dan een uitnodiging om in onderhandeling te treden. Aan de inhoud van deze informatie kunnen geen rechten worden ontleend.