Met een eigen account kun je panden volgen, opslaan als favoriet, je zoekprofiel opslaan en jouw eigen notities bij een huis maken.
Algemeen
Wiersedreef 5, 3433 ZX te Nieuwegein.
Algemeen
Indien u op zoek bent naar een vestigingslocatie van individuele klasse voor uw organisatie, bieden wij u deze kantoorruimte in Buitenplaats De Wiers aan. Buitenplaats de Wiers is gelegen op een prachtige en aantrekkelijke locatie aan de rand van het sfeervolle schippersdorp Vreeswijk (Nieuwegein) en heeft een parktuin grenzend aan de Vaartse R... Meer informatie
Algemeen
Indien u op zoek bent naar een vestigingslocatie van individuele klasse voor uw organisatie, bieden wij u deze kantoorruimte in Buitenplaats De Wiers aan. Buitenplaats de Wiers is gelegen op een prachtige en aantrekkelijke locatie aan de rand van het sfeervolle schippersdorp Vreeswijk (Nieuwegein) en heeft een parktuin grenzend aan de Vaartse R... Meer informatie
-
Kenmerken
Alle kenmerken Type object Kantoor Bouwperiode 2005 Status Nieuw in verhuur Aangeboden sinds Maandag 19 januari 2026 -
Locatie
Kenmerken
| Overdracht | |
|---|---|
| Referentienummer | 00292 |
| Huurprijs | € 51.000,- per jaar |
| Status | Nieuw in verhuur |
| Aanvaarding | In overleg |
| Aangeboden sinds | Maandag 19 januari 2026 |
| Bouw | |
|---|---|
| Type object | Kantoor |
| Soort bouw | Bestaande bouw |
| Bouwperiode | 2005 |
| Oppervlaktes en inhoud | |
|---|---|
| VVO | 258 m² |
| In units vanaf | 258 m² |
| Indeling | |
|---|---|
| Aantal bouwlagen | 1 |
| Locatie | |
|---|---|
| Ligging | Aan drukke weg, Aan rustige weg, Aan vaarwater, Dichtbij openbaar vervoer, In woonwijk, Nabij snelweg, Vrij uitzicht |
| Lokale voorzieningen | Recreatie binnen 500 meter, Restaurant binnen 500 meter, Winkel op 1500 meter tot 2000 meter, Supermarkt op 1000 meter tot 1500 meter |
| Bereikbaarheid | Bushalte binnen 500 meter, Afrit van de snelweg op 1500 meter tot 2000 meter, Tramhalte op 1500 meter tot 2000 meter |
| Energieverbruik | |
|---|---|
| Energielabel | A |
| Uitrusting | |
|---|---|
| Aantal parkeerplaatsen | 5 |
| Kadastrale gegevens | |
|---|---|
| Kadastrale aanduiding | Vreeswijk C 1572 |
Beschrijving
Wiersedreef 5, 3433 ZX te Nieuwegein.
Algemeen
Indien u op zoek bent naar een vestigingslocatie van individuele klasse voor uw organisatie, bieden wij u deze kantoorruimte in Buitenplaats De Wiers aan. Buitenplaats de Wiers is gelegen op een prachtige en aantrekkelijke locatie aan de rand van het sfeervolle schippersdorp Vreeswijk (Nieuwegein) en heeft een parktuin grenzend aan de Vaartse Rijn. Het gebouw heeft een hoogwaardige uitstraling door haar monumentale situering, materiaalgebruik, afwerkingsniveau en voorzieningen.
Als huurder van Buitenplaats De Wiers heeft u tevens de unieke mogelijkheid om gebruik te maken van de (vergader)faciliteiten van het in het souterrain gevestigde restaurant Huis de Wiers. Catering voor uw gasten en medewerkers behoort ook tot de mogelijkheden.
Daarnaast kunt u in het nabij gelegen dorpscentrum Vreeswijk terecht voor enkele winkels en meerdere restaurants en terrassen. Op enkele autominuten bevinden zich meerdere winkelcentra.
Bereikbaarheid
De kantoorruimte is vanaf de A2 (afslag Nieuwegein-Zuid), A12 en A27 zeer goed bereikbaar.
Via het openbaar vervoer is de locatie met de streekbuslijnen 65 en 565 vanuit Utrecht en het centrum van Nieuwegein goed bereikbaar.
Vloeroppervlak
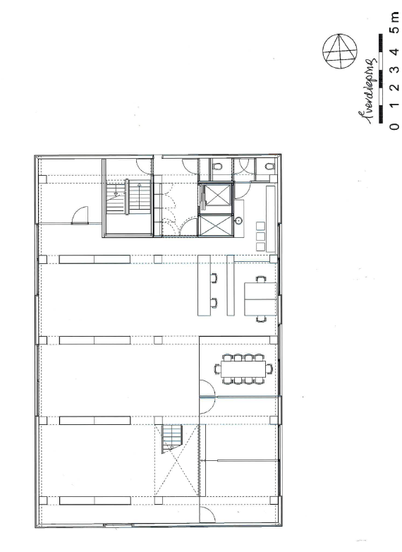
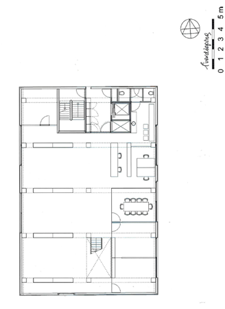
Het totale verhuurbare vloeroppervlak bedraagt circa 258 m² kantoorruimte gelegen op de 1e verdieping.
De vermelde metrage is uitsluitend indicatief. Het object is niet conform de meetnorm van het normblad NEN 2580 ingemeten en derhalve kan geen enkel recht worden ontleend aan de genoemde metrages.
Opleveringsniveau en voorzieningen
Het object zal (schoon en ontruimd) worden aangeboden in de huidige staat met het huidige hoogwaardige opleveringsniveau, o.a. voorzien van:
- vlak plafond met verlichtingsarmaturen;
- zichtbare houten draagstructuur;
- gevlinderde betonvloer;
- kabelgoten (in de vloer) voorzien van wcd's en huidige UTP cat 5.e databekabeling;
- vloerverwarming;
- vloer (top) koeling (3 à 4 graden t.o.v. zomerse buitentemperatuur);
- pantry met inbouw koelkast en vaatwasser;
- doorstroomboiler;
- toiletgroep;
- te openen ramen;
- zonwering;
- vergaderkamers;
- personenlift.
De ruimten zijn naar wens van de gebruiker in te delen en kunnen worden voorzien van alle gemakken die in de komende decennia denkbaar zijn.
Parkeren
Op het terrein 5 parkeerplaatsen, behorende bij buitenplaats De Wiers en daarnaast is in de omgeving voldoende gratis openbare parkeergelegenheid.
Gebruiksmogelijkheden
Kantoorruimte.
Huurprijs
EUR 51.000,- per jaar, inclusief 5 parkeerplaatsen, te vermeerderen met BTW.
(EUR 4.250,- per maand).
Huurprijsaanpassing
Jaarlijks, op basis van de wijziging van het maandprijsindexcijfer, volgens de consumentenprijsindex “alle huishoudens” (2025 = 100), gepubliceerd door het Centraal Bureau voor de Statistiek (CBS).
Huurtermijn
In overleg, met een minimum van 3 jaar.
Betalingen
Huur en servicekosten inclusief BTW per maand vooruit.
BTW
Indien huurder niet aan het “90% criterium” voldoet, zal er van rechtswege sprake zijn van omzetbelasting vrijgestelde verhuur. Alsdan wordt de overeengekomen kale huurprijs, exclusief omzetbelasting, zodanig verhoogd dat het voor verhuurder ontstane financiële nadeel wordt gecompenseerd.
Verrekenbaar voorschot servicekosten
EUR 45,- per m² per jaar, te vermeerderen met BTW, als verrekenbaar voorschot op de vergoeding voor volgende leveringen en diensten:
- gas- en elektraverbruik;
- onderhoud tuin/terrein;
- onderhoud lift;
- onderhoud luchtbehandeling/verwarming;
- onderhoud brandveiligheid/brandmeldinstallatie;
- glasbewassing buitenzijde;
- schoonmaak gemeenschappelijke ruimten.
Verhuurder is gerechtigd het gas en elektra voorschot tussentijds aan te passen conform de prijsontwikkelingen in de markt.
Voor het waterverbruik is een eigen meter aanwezig en dient huurder de kosten rechtstreeks te voldoen aan desbetreffend nutsbedrijf.
Afhankelijk van ontwikkelingen en reacties uit de markt zullen wij in overleg met u de definitieve prijs en overige voorwaarden bepalen.
Energielabel
Het pand heeft een energielabel A.
Zekerheidstelling
Bankgarantie of waarborgsom ter grootte van drie maanden huur, servicekosten en BTW.
Aanvaarding
In overleg, op korte termijn beschikbaar.
Overige condities
Huurovereenkomst op basis van het standaard model van de Raad voor Onroerende Zaken (ROZ).
De vermelde informatie is van algemene aard en is niet meer dan een uitnodiging om in onderhandeling te treden. Aan de inhoud van deze informatie kunnen geen rechten worden ontleend.
Algemeen
Indien u op zoek bent naar een vestigingslocatie van individuele klasse voor uw organisatie, bieden wij u deze kantoorruimte in Buitenplaats De Wiers aan. Buitenplaats de Wiers is gelegen op een prachtige en aantrekkelijke locatie aan de rand van het sfeervolle schippersdorp Vreeswijk (Nieuwegein) en heeft een parktuin grenzend aan de Vaartse Rijn. Het gebouw heeft een hoogwaardige uitstraling door haar monumentale situering, materiaalgebruik, afwerkingsniveau en voorzieningen.
Als huurder van Buitenplaats De Wiers heeft u tevens de unieke mogelijkheid om gebruik te maken van de (vergader)faciliteiten van het in het souterrain gevestigde restaurant Huis de Wiers. Catering voor uw gasten en medewerkers behoort ook tot de mogelijkheden.
Daarnaast kunt u in het nabij gelegen dorpscentrum Vreeswijk terecht voor enkele winkels en meerdere restaurants en terrassen. Op enkele autominuten bevinden zich meerdere winkelcentra.
Bereikbaarheid
De kantoorruimte is vanaf de A2 (afslag Nieuwegein-Zuid), A12 en A27 zeer goed bereikbaar.
Via het openbaar vervoer is de locatie met de streekbuslijnen 65 en 565 vanuit Utrecht en het centrum van Nieuwegein goed bereikbaar.
Vloeroppervlak
Het totale verhuurbare vloeroppervlak bedraagt circa 258 m² kantoorruimte gelegen op de 1e verdieping.
De vermelde metrage is uitsluitend indicatief. Het object is niet conform de meetnorm van het normblad NEN 2580 ingemeten en derhalve kan geen enkel recht worden ontleend aan de genoemde metrages.
Opleveringsniveau en voorzieningen
Het object zal (schoon en ontruimd) worden aangeboden in de huidige staat met het huidige hoogwaardige opleveringsniveau, o.a. voorzien van:
- vlak plafond met verlichtingsarmaturen;
- zichtbare houten draagstructuur;
- gevlinderde betonvloer;
- kabelgoten (in de vloer) voorzien van wcd's en huidige UTP cat 5.e databekabeling;
- vloerverwarming;
- vloer (top) koeling (3 à 4 graden t.o.v. zomerse buitentemperatuur);
- pantry met inbouw koelkast en vaatwasser;
- doorstroomboiler;
- toiletgroep;
- te openen ramen;
- zonwering;
- vergaderkamers;
- personenlift.
De ruimten zijn naar wens van de gebruiker in te delen en kunnen worden voorzien van alle gemakken die in de komende decennia denkbaar zijn.
Parkeren
Op het terrein 5 parkeerplaatsen, behorende bij buitenplaats De Wiers en daarnaast is in de omgeving voldoende gratis openbare parkeergelegenheid.
Gebruiksmogelijkheden
Kantoorruimte.
Huurprijs
EUR 51.000,- per jaar, inclusief 5 parkeerplaatsen, te vermeerderen met BTW.
(EUR 4.250,- per maand).
Huurprijsaanpassing
Jaarlijks, op basis van de wijziging van het maandprijsindexcijfer, volgens de consumentenprijsindex “alle huishoudens” (2025 = 100), gepubliceerd door het Centraal Bureau voor de Statistiek (CBS).
Huurtermijn
In overleg, met een minimum van 3 jaar.
Betalingen
Huur en servicekosten inclusief BTW per maand vooruit.
BTW
Indien huurder niet aan het “90% criterium” voldoet, zal er van rechtswege sprake zijn van omzetbelasting vrijgestelde verhuur. Alsdan wordt de overeengekomen kale huurprijs, exclusief omzetbelasting, zodanig verhoogd dat het voor verhuurder ontstane financiële nadeel wordt gecompenseerd.
Verrekenbaar voorschot servicekosten
EUR 45,- per m² per jaar, te vermeerderen met BTW, als verrekenbaar voorschot op de vergoeding voor volgende leveringen en diensten:
- gas- en elektraverbruik;
- onderhoud tuin/terrein;
- onderhoud lift;
- onderhoud luchtbehandeling/verwarming;
- onderhoud brandveiligheid/brandmeldinstallatie;
- glasbewassing buitenzijde;
- schoonmaak gemeenschappelijke ruimten.
Verhuurder is gerechtigd het gas en elektra voorschot tussentijds aan te passen conform de prijsontwikkelingen in de markt.
Voor het waterverbruik is een eigen meter aanwezig en dient huurder de kosten rechtstreeks te voldoen aan desbetreffend nutsbedrijf.
Afhankelijk van ontwikkelingen en reacties uit de markt zullen wij in overleg met u de definitieve prijs en overige voorwaarden bepalen.
Energielabel
Het pand heeft een energielabel A.
Zekerheidstelling
Bankgarantie of waarborgsom ter grootte van drie maanden huur, servicekosten en BTW.
Aanvaarding
In overleg, op korte termijn beschikbaar.
Overige condities
Huurovereenkomst op basis van het standaard model van de Raad voor Onroerende Zaken (ROZ).
De vermelde informatie is van algemene aard en is niet meer dan een uitnodiging om in onderhandeling te treden. Aan de inhoud van deze informatie kunnen geen rechten worden ontleend.