Met een eigen account kun je panden volgen, opslaan als favoriet, je zoekprofiel opslaan en jouw eigen notities bij een huis maken.
Algemeen
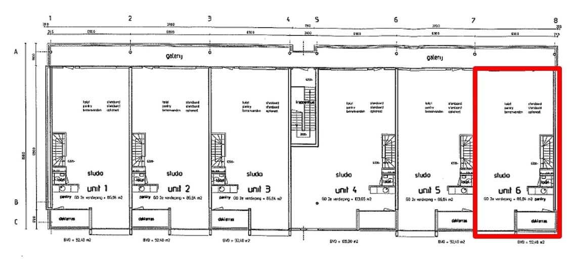
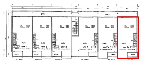
Turn-key praktijk-/kantoorruimte op de 2e verdieping
Gebouw Havenzicht
Wiersedreef 22, 3433 ZX Nieuwegein
Op een bijzondere vestigingslocatie met een levendige en waterrijke omgeving, bieden wij u deze praktijk-/bedrijfsruimte in Nieuwegein aan. Het object is gelegen op de tweede verdieping op een aantrekkelijke locatie aan de rand van het oude schippersdorp Vreeswijk. Het maakt onderdeel... Meer informatie
Gebouw Havenzicht
Wiersedreef 22, 3433 ZX Nieuwegein
Op een bijzondere vestigingslocatie met een levendige en waterrijke omgeving, bieden wij u deze praktijk-/bedrijfsruimte in Nieuwegein aan. Het object is gelegen op de tweede verdieping op een aantrekkelijke locatie aan de rand van het oude schippersdorp Vreeswijk. Het maakt onderdeel... Meer informatie
-
Kenmerken
Alle kenmerken Type object Kantoor Bouwperiode 2007 Aangeboden sinds Dinsdag 22 april 2025 -
Locatie
Kenmerken
| Overdracht | |
|---|---|
| Referentienummer | 00281 |
| Huurprijs | € 1.090,- per maand |
| Aanvaarding | In overleg |
| Aangeboden sinds | Dinsdag 22 april 2025 |
| Laatste wijziging | Maandag 1 december 2025 |
| Bouw | |
|---|---|
| Type object | Kantoor |
| Soort bouw | Bestaande bouw |
| Bouwperiode | 2007 |
| Oppervlaktes en inhoud | |
|---|---|
| VVO | 97 m² |
| In units vanaf | 97 m² |
| Indeling | |
|---|---|
| Aantal bouwlagen | 1 |
| Locatie | |
|---|---|
| Ligging | Nabij snelweg |
| Bereikbaarheid | Bushalte binnen 500 meter, Afrit van de snelweg op 500 meter tot 1000 meter |
| Energieverbruik | |
|---|---|
| Energielabel | A+ |
| Kadastrale gegevens | |
|---|---|
| Kadastrale aanduiding | Vreeswijk C 1508 |
Beschrijving
Turn-key praktijk-/kantoorruimte op de 2e verdieping
Gebouw Havenzicht
Wiersedreef 22, 3433 ZX Nieuwegein
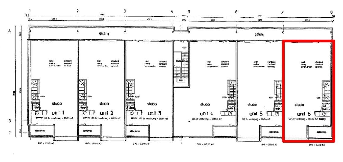
Op een bijzondere vestigingslocatie met een levendige en waterrijke omgeving, bieden wij u deze praktijk-/bedrijfsruimte in Nieuwegein aan. Het object is gelegen op de tweede verdieping op een aantrekkelijke locatie aan de rand van het oude schippersdorp Vreeswijk. Het maakt onderdeel uit van een zevental bedrijfsunits op eigen terrein en heeft een hoogwaardige uitstraling door haar goede situering, materiaalgebruik, afwerkingsniveau en voorzieningen.
In het karakteristieke nabij gelegen dorpscentrum Vreeswijk kunt u terecht bij de diverse restaurants, op korte afstand zijn supermarkten en diverse winkels.
Op Havenzicht zijn ondermeer de navolgende bedrijven gevestigd: Yogastudio Nieuwegein, Viqtor, Spino, Florie en Beau Clinic. Op het naastgelegen terrein is restaurant Huis de Wiers gevestigd.
Bereikbaarheid
De locatie is vanaf de A2 (afslag Nieuwegein-Zuid), A12 en A27 uitstekend bereikbaar.
Via het openbaar vervoer is de locatie met de sneltram Utrecht - Nieuwegein-Zuid alsmede streekbuslijnen vanuit Utrecht en het centrum van Nieuwegein goed bereikbaar.
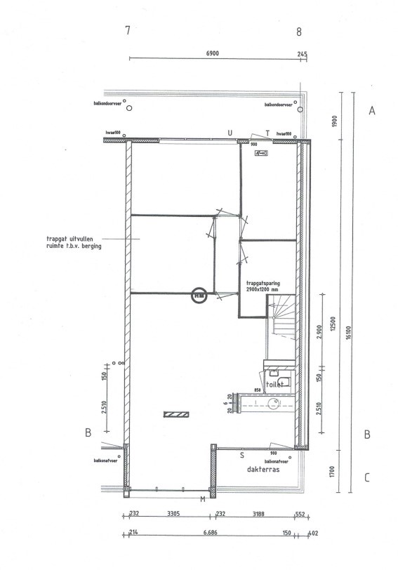
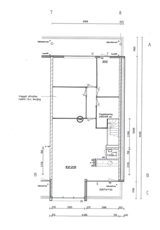
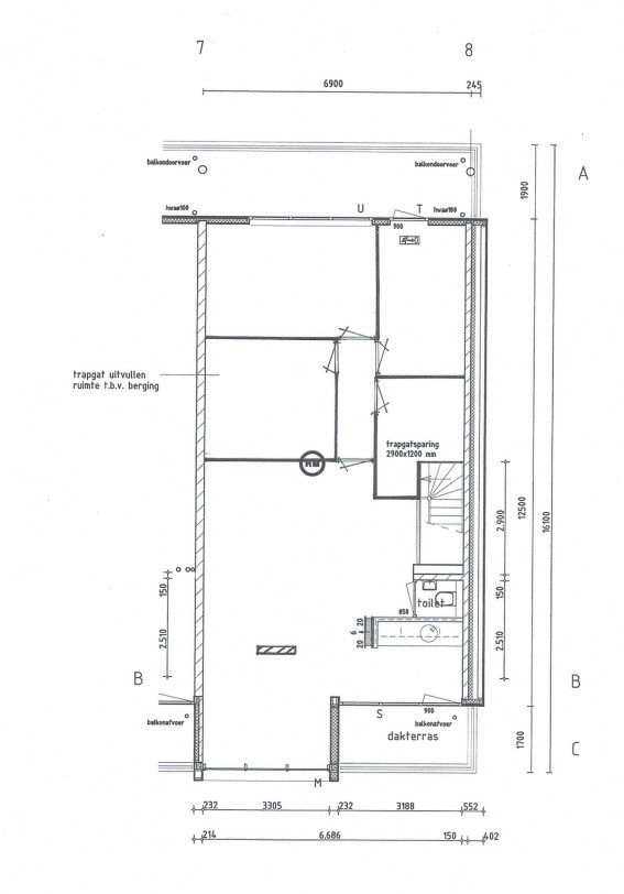
Vloeroppervlak
Het beschikbare verhuurbaar vloeroppervlak bedraagt circa 97 m² praktijk-/kantoor-/ bedrijfsruimte, inclusief aandeel gemeenschappelijke ruimte, gelegen op de tweede verdieping.
Opleveringsniveau en voorzieningen
Het object zal (schoon en ontruimd) worden aangeboden met de volgende voorzieningen:
- gezamenlijke entree op de begane grond;
- systeemplafonds met (ingebouwde) verlichtingsarmaturen bij de entree;
- vloer;
- pantry;
- toilet;
- CV-ketel.
Parkeren
1 Eigen parkeerplaats,
Daarnaast voldoende gratis parkeermogelijkheid in de directe omgeving. Voor bezoekers zijn er 4 algemene bezoekersparkeerplaatsen op het terrein.
Gebruiksmogelijkheden
Praktijk/-kantoor-/bedrijfsruimte.
Huurprijs
EUR 1.090,- per maand, te vermeerderen met BTW.
Huurprijsaanpassing
Jaarlijks, op basis van de wijziging van het maandprijsindexcijfer, volgens de consumentenprijsindex “alle huishoudens” (2015 = 100), gepubliceerd door het Centraal Bureau voor de Statistiek (CBS).
Huurtermijn
3 (drie) jaar.
Betalingen
Huur en servicekosten inclusief BTW per maand vooruit.
BTW
Indien huurder niet aan het “90% criterium” voldoet, zal er van rechtswege sprake zijn van omzetbelasting vrijgestelde verhuur. Alsdan wordt de overeengekomen kale huurprijs, exclusief omzetbelasting, zodanig verhoogd dat het voor verhuurder ontstane financiële nadeel wordt gecompenseerd.
Verrekenbaar voorschot servicekosten
EUR 25,- per m² per jaar, te vermeerderen met BTW, als verrekenbaar voorschot op de vergoeding voor volgende leveringen en diensten:
- gasverbruik inclusief vastrecht;
- elektriciteitsverbruik inclusief vastrecht ten behoeve van de installaties en de verlichting van de gehuurde ruimte en de gemeenschappelijke ruimten;
- waterverbruik inclusief vastrecht;
- onderhoud en periodieke controle van verwarmingsinstallatie;
- bijdrage VVE (o.a. onderhoud terrein en groenvoorziening, containerhuur, verlichting algemene ruimten, schoonmaakkosten algemene ruimte);
- assurantiepremie buitenbeglazing;
- administratiekosten ad 5% over de hierboven genoemde leveringen en diensten.
Zekerheidstelling
Bankgarantie of waarborgsom ter grootte van drie maanden huur inclusief servicekosten en BTW.
Aanvaarding
Per direct.
Energielabel
Het pand heeft een geregistreerd energielabel A+, geldig tot 18-10-2032.
Overige condities
Huurovereenkomst op basis van het standaard model van de Raad voor Onroerende Zaken (ROZ).
De vermelde informatie is van algemene aard en is niet meer dan een uitnodiging om in onderhandeling te treden. Aan de inhoud van deze informatie kunnen geen rechten worden ontleend.
Gebouw Havenzicht
Wiersedreef 22, 3433 ZX Nieuwegein
Op een bijzondere vestigingslocatie met een levendige en waterrijke omgeving, bieden wij u deze praktijk-/bedrijfsruimte in Nieuwegein aan. Het object is gelegen op de tweede verdieping op een aantrekkelijke locatie aan de rand van het oude schippersdorp Vreeswijk. Het maakt onderdeel uit van een zevental bedrijfsunits op eigen terrein en heeft een hoogwaardige uitstraling door haar goede situering, materiaalgebruik, afwerkingsniveau en voorzieningen.
In het karakteristieke nabij gelegen dorpscentrum Vreeswijk kunt u terecht bij de diverse restaurants, op korte afstand zijn supermarkten en diverse winkels.
Op Havenzicht zijn ondermeer de navolgende bedrijven gevestigd: Yogastudio Nieuwegein, Viqtor, Spino, Florie en Beau Clinic. Op het naastgelegen terrein is restaurant Huis de Wiers gevestigd.
Bereikbaarheid
De locatie is vanaf de A2 (afslag Nieuwegein-Zuid), A12 en A27 uitstekend bereikbaar.
Via het openbaar vervoer is de locatie met de sneltram Utrecht - Nieuwegein-Zuid alsmede streekbuslijnen vanuit Utrecht en het centrum van Nieuwegein goed bereikbaar.
Vloeroppervlak
Het beschikbare verhuurbaar vloeroppervlak bedraagt circa 97 m² praktijk-/kantoor-/ bedrijfsruimte, inclusief aandeel gemeenschappelijke ruimte, gelegen op de tweede verdieping.
Opleveringsniveau en voorzieningen
Het object zal (schoon en ontruimd) worden aangeboden met de volgende voorzieningen:
- gezamenlijke entree op de begane grond;
- systeemplafonds met (ingebouwde) verlichtingsarmaturen bij de entree;
- vloer;
- pantry;
- toilet;
- CV-ketel.
Parkeren
1 Eigen parkeerplaats,
Daarnaast voldoende gratis parkeermogelijkheid in de directe omgeving. Voor bezoekers zijn er 4 algemene bezoekersparkeerplaatsen op het terrein.
Gebruiksmogelijkheden
Praktijk/-kantoor-/bedrijfsruimte.
Huurprijs
EUR 1.090,- per maand, te vermeerderen met BTW.
Huurprijsaanpassing
Jaarlijks, op basis van de wijziging van het maandprijsindexcijfer, volgens de consumentenprijsindex “alle huishoudens” (2015 = 100), gepubliceerd door het Centraal Bureau voor de Statistiek (CBS).
Huurtermijn
3 (drie) jaar.
Betalingen
Huur en servicekosten inclusief BTW per maand vooruit.
BTW
Indien huurder niet aan het “90% criterium” voldoet, zal er van rechtswege sprake zijn van omzetbelasting vrijgestelde verhuur. Alsdan wordt de overeengekomen kale huurprijs, exclusief omzetbelasting, zodanig verhoogd dat het voor verhuurder ontstane financiële nadeel wordt gecompenseerd.
Verrekenbaar voorschot servicekosten
EUR 25,- per m² per jaar, te vermeerderen met BTW, als verrekenbaar voorschot op de vergoeding voor volgende leveringen en diensten:
- gasverbruik inclusief vastrecht;
- elektriciteitsverbruik inclusief vastrecht ten behoeve van de installaties en de verlichting van de gehuurde ruimte en de gemeenschappelijke ruimten;
- waterverbruik inclusief vastrecht;
- onderhoud en periodieke controle van verwarmingsinstallatie;
- bijdrage VVE (o.a. onderhoud terrein en groenvoorziening, containerhuur, verlichting algemene ruimten, schoonmaakkosten algemene ruimte);
- assurantiepremie buitenbeglazing;
- administratiekosten ad 5% over de hierboven genoemde leveringen en diensten.
Zekerheidstelling
Bankgarantie of waarborgsom ter grootte van drie maanden huur inclusief servicekosten en BTW.
Aanvaarding
Per direct.
Energielabel
Het pand heeft een geregistreerd energielabel A+, geldig tot 18-10-2032.
Overige condities
Huurovereenkomst op basis van het standaard model van de Raad voor Onroerende Zaken (ROZ).
De vermelde informatie is van algemene aard en is niet meer dan een uitnodiging om in onderhandeling te treden. Aan de inhoud van deze informatie kunnen geen rechten worden ontleend.