Met een eigen account kun je panden volgen, opslaan als favoriet, je zoekprofiel opslaan en jouw eigen notities bij een huis maken.
Algemeen
Algemeen
Zeer representatieve kantoorruimte gelegen op de 1e verdieping. Het bedrijfsgebouw staat op een mooie zichtlocatie op bedrijventerrein Plettenburg-De Wiers en bestaat uit een kantoor met twee bouwlagen en bijbehorende bedrijfsruimte. De bedrijfshal en kantoorruimte op de begane grond zijn reeds verhuurd.
De omliggende bebouwing bestaat uit meerdere kleinschalige en middelgrote bedr... Meer informatie
Zeer representatieve kantoorruimte gelegen op de 1e verdieping. Het bedrijfsgebouw staat op een mooie zichtlocatie op bedrijventerrein Plettenburg-De Wiers en bestaat uit een kantoor met twee bouwlagen en bijbehorende bedrijfsruimte. De bedrijfshal en kantoorruimte op de begane grond zijn reeds verhuurd.
De omliggende bebouwing bestaat uit meerdere kleinschalige en middelgrote bedr... Meer informatie
-
Kenmerken
Alle kenmerken Type object Kantoor Bouwperiode 1987 Aangeboden sinds Woensdag 13 december 2023 -
Locatie
Kenmerken
| Overdracht | |
|---|---|
| Referentienummer | 00233 |
| Aanvaarding | Direct |
| Aangeboden sinds | Woensdag 13 december 2023 |
| Laatste wijziging | Donderdag 8 januari 2026 |
| Bouw | |
|---|---|
| Type object | Kantoor |
| Soort bouw | Bestaande bouw |
| Bouwperiode | 1987 |
| Oppervlaktes en inhoud | |
|---|---|
| VVO | 550 m² |
| In units vanaf | 300 m² |
| Indeling | |
|---|---|
| Aantal bouwlagen | 1 |
| Locatie | |
|---|---|
| Ligging | Bedrijventerrein |
| Lokale voorzieningen | Bank op 2000 meter tot 3000 meter, Geldautomaat op 2000 meter tot 3000 meter, Restaurant op 500 meter tot 1000 meter, Winkel op 1500 meter tot 2000 meter, Supermarkt op 1500 meter tot 2000 meter |
| Bereikbaarheid | Bushalte binnen 500 meter, Busknooppunt op 2000 meter tot 3000 meter, Afrit van de snelweg op 2000 meter tot 3000 meter, Tramhalte op 1500 meter tot 2000 meter |
| Energieverbruik | |
|---|---|
| Energielabel | A |
Beschrijving
Algemeen
Zeer representatieve kantoorruimte gelegen op de 1e verdieping. Het bedrijfsgebouw staat op een mooie zichtlocatie op bedrijventerrein Plettenburg-De Wiers en bestaat uit een kantoor met twee bouwlagen en bijbehorende bedrijfsruimte. De bedrijfshal en kantoorruimte op de begane grond zijn reeds verhuurd.
De omliggende bebouwing bestaat uit meerdere kleinschalige en middelgrote bedrijfsgebouwen met bijbehorende kantoren. Op het bedrijventerrein zijn bekende ondernemingen gevestigd, zoals: MIKO, Euromaster, Scholman en Thim van der Laan.
Bereikbaarheid
De bereikbaarheid van het bedrijfsgebouw is zowel met de auto als met het openbaar vervoer goed. Via de verbindingsweg Plettenburgerbaan zijn de rijkswegen A2, A12 en A27 binnen enkele autominuten te bereiken.
Het bedrijfsgebouw is met het openbaar vervoer goed bereikbaar, vanaf Utrecht CS en station Houten rijden er diverse buslijnen (buslijn 48, 65 en 66) naar de bushaltes die zich in de directe omgeving van het bedrijfsgebouw bevinden.
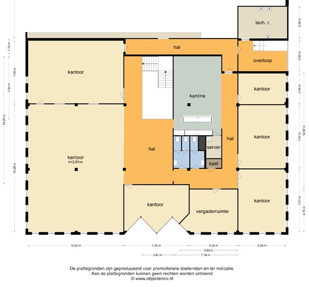
Vloeroppervlak
Het verhuurbare vloeroppervlak bedraagt circa 550 m² kantoorruimte op de 1e verdieping. Deelverhuur is mogelijk vanaf circa 300 m2, waarbij een aangepaste vierkante meterprijs van toepassing is.
De vermelde metrages zijn indicatief. Het object is niet conform de meetnorm NEN2580 ingemeten en derhalve kan geen enkel recht worden ontleend aan de genoemde metrages.
Opleveringsniveau en voorzieningen
Het object zal (schoon en ontruimd) worden opgeleverd, in de huidige staat, met de volgende voorzieningen:
- representatieve gedeelde entree;
- zonwerend glas;
- plafond met systeempanelen uitgerust met LED-inbouwverlichting;
- bestaande vloerbedekking;
- aanwezige tussenwanden met deuren;
- keukenblok voorzien van diverse apparatuur;
- ramen die geopend kunnen worden;
- voorzien van atrium met grote lichtstraat;
- sanitaire voorzieningen;
- radiatoren en cv-verwarmingssysteem;
- mechanische ventilatie;
- airconditioning via splitunits;
- kabelgoten voor elektra, data en telefoonbekabeling.
Oplevering inclusief huidige capaciteit van de aanwezige nutsaansluitingen voor gas, elektra en water.
Parkeren
Er zijn 10 parkeerplaatsen beschikbaar op eigen terrein. Er is een mogelijkheid om het aantal parkeerplaatsen uit te breiden.
Gebruiksmogelijkheden
Kantoorruimte.
Huurprijs
Kantoorruimte: vanaf EUR 99,75 per m2 per jaar, te vermeerderen met BTW.
Parkeerplaats: EUR 500,- per plaats per jaar, te vermeerderen met BTW.
Aanpassing huurprijs
Jaarlijks op 1 januari, voor het eerst op 1 januari 2027, op basis van de wijziging van het maandprijsindexcijfer, volgens de consumentenprijsindex “alle huishoudens” (2025 = 100), gepubliceerd door het Centraal Bureau voor de Statistiek (CBS).
Huurtermijn
5 (vijf) jaar met een verlengingsperiode van 5 (vijf) jaar. Kortere huurperioden zijn bespreekbaar tegen een hogere huurprijs.
Opzegtermijn
Uiterlijk 12 (twaalf) maanden voor het aflopen van een huurtermijn.
Betalingen
Huur en servicekosten inclusief BTW per kwartaal vooruit.
BTW
Indien huurder niet aan het “90% criterium” voldoet, zal er van rechtswege sprake zijn van omzetbelasting vrijgestelde verhuur. Alsdan wordt de overeengekomen kale huurprijs, exclusief omzetbelasting, zodanig verhoogd dat het voor verhuurder ontstane financiële nadeel wordt gecompenseerd.
Servicekosten
Nader te bepalen, voor onder andere de kosten van de volgende leveringen en diensten:
- nutsvoorzieningen (verbruik van gas, water, elektra) inclusief meterhuur, transportkosten, vastrecht en belastingen;
- onderhoud en reparaties aanwezige airco installaties;
- tuinonderhoud, onderhoud buitenterrein;
- onderhoud brandmeldinstallatie;
- onderhoud en reparatie CV installatie;
- schoonhouden dak en hemelwaterafvoer;
- bewassing buitenbeglazing 3 x per jaar;
- gevelreiniging;
- assurantiekosten buitenbeglazing (m.u.v. inbraak);
- onderhoud noodverlichting inclusief reparaties;
- onderhoud brandslanghaspels;
- administratie kosten van 5% over bovengenoemde diensten.
Energielabel
Het pand heeft een energielabel A.
Zekerheidstelling
Waarborgsom ter grootte van drie maanden huur, servicekosten en BTW.
Aanvaarding
In overleg, per direct beschikbaar.
Overige condities
Huurovereenkomst op basis van het standaard model van de Raad voor Onroerende Zaken (ROZ).
De vermelde informatie is van algemene aard en is niet meer dan een uitnodiging om in onderhandeling te treden. Aan de inhoud van deze informatie kunnen geen rechten worden ontleend.
Zeer representatieve kantoorruimte gelegen op de 1e verdieping. Het bedrijfsgebouw staat op een mooie zichtlocatie op bedrijventerrein Plettenburg-De Wiers en bestaat uit een kantoor met twee bouwlagen en bijbehorende bedrijfsruimte. De bedrijfshal en kantoorruimte op de begane grond zijn reeds verhuurd.
De omliggende bebouwing bestaat uit meerdere kleinschalige en middelgrote bedrijfsgebouwen met bijbehorende kantoren. Op het bedrijventerrein zijn bekende ondernemingen gevestigd, zoals: MIKO, Euromaster, Scholman en Thim van der Laan.
Bereikbaarheid
De bereikbaarheid van het bedrijfsgebouw is zowel met de auto als met het openbaar vervoer goed. Via de verbindingsweg Plettenburgerbaan zijn de rijkswegen A2, A12 en A27 binnen enkele autominuten te bereiken.
Het bedrijfsgebouw is met het openbaar vervoer goed bereikbaar, vanaf Utrecht CS en station Houten rijden er diverse buslijnen (buslijn 48, 65 en 66) naar de bushaltes die zich in de directe omgeving van het bedrijfsgebouw bevinden.
Vloeroppervlak
Het verhuurbare vloeroppervlak bedraagt circa 550 m² kantoorruimte op de 1e verdieping. Deelverhuur is mogelijk vanaf circa 300 m2, waarbij een aangepaste vierkante meterprijs van toepassing is.
De vermelde metrages zijn indicatief. Het object is niet conform de meetnorm NEN2580 ingemeten en derhalve kan geen enkel recht worden ontleend aan de genoemde metrages.
Opleveringsniveau en voorzieningen
Het object zal (schoon en ontruimd) worden opgeleverd, in de huidige staat, met de volgende voorzieningen:
- representatieve gedeelde entree;
- zonwerend glas;
- plafond met systeempanelen uitgerust met LED-inbouwverlichting;
- bestaande vloerbedekking;
- aanwezige tussenwanden met deuren;
- keukenblok voorzien van diverse apparatuur;
- ramen die geopend kunnen worden;
- voorzien van atrium met grote lichtstraat;
- sanitaire voorzieningen;
- radiatoren en cv-verwarmingssysteem;
- mechanische ventilatie;
- airconditioning via splitunits;
- kabelgoten voor elektra, data en telefoonbekabeling.
Oplevering inclusief huidige capaciteit van de aanwezige nutsaansluitingen voor gas, elektra en water.
Parkeren
Er zijn 10 parkeerplaatsen beschikbaar op eigen terrein. Er is een mogelijkheid om het aantal parkeerplaatsen uit te breiden.
Gebruiksmogelijkheden
Kantoorruimte.
Huurprijs
Kantoorruimte: vanaf EUR 99,75 per m2 per jaar, te vermeerderen met BTW.
Parkeerplaats: EUR 500,- per plaats per jaar, te vermeerderen met BTW.
Aanpassing huurprijs
Jaarlijks op 1 januari, voor het eerst op 1 januari 2027, op basis van de wijziging van het maandprijsindexcijfer, volgens de consumentenprijsindex “alle huishoudens” (2025 = 100), gepubliceerd door het Centraal Bureau voor de Statistiek (CBS).
Huurtermijn
5 (vijf) jaar met een verlengingsperiode van 5 (vijf) jaar. Kortere huurperioden zijn bespreekbaar tegen een hogere huurprijs.
Opzegtermijn
Uiterlijk 12 (twaalf) maanden voor het aflopen van een huurtermijn.
Betalingen
Huur en servicekosten inclusief BTW per kwartaal vooruit.
BTW
Indien huurder niet aan het “90% criterium” voldoet, zal er van rechtswege sprake zijn van omzetbelasting vrijgestelde verhuur. Alsdan wordt de overeengekomen kale huurprijs, exclusief omzetbelasting, zodanig verhoogd dat het voor verhuurder ontstane financiële nadeel wordt gecompenseerd.
Servicekosten
Nader te bepalen, voor onder andere de kosten van de volgende leveringen en diensten:
- nutsvoorzieningen (verbruik van gas, water, elektra) inclusief meterhuur, transportkosten, vastrecht en belastingen;
- onderhoud en reparaties aanwezige airco installaties;
- tuinonderhoud, onderhoud buitenterrein;
- onderhoud brandmeldinstallatie;
- onderhoud en reparatie CV installatie;
- schoonhouden dak en hemelwaterafvoer;
- bewassing buitenbeglazing 3 x per jaar;
- gevelreiniging;
- assurantiekosten buitenbeglazing (m.u.v. inbraak);
- onderhoud noodverlichting inclusief reparaties;
- onderhoud brandslanghaspels;
- administratie kosten van 5% over bovengenoemde diensten.
Energielabel
Het pand heeft een energielabel A.
Zekerheidstelling
Waarborgsom ter grootte van drie maanden huur, servicekosten en BTW.
Aanvaarding
In overleg, per direct beschikbaar.
Overige condities
Huurovereenkomst op basis van het standaard model van de Raad voor Onroerende Zaken (ROZ).
De vermelde informatie is van algemene aard en is niet meer dan een uitnodiging om in onderhandeling te treden. Aan de inhoud van deze informatie kunnen geen rechten worden ontleend.