Met een eigen account kun je panden volgen, opslaan als favoriet, je zoekprofiel opslaan en jouw eigen notities bij een huis maken.
Algemeen
Merianweg 1, 3401 MR te IJsselstein.
Algemeen
Het vrijstaande bedrijfspand, waarvan de kantoorzijde momenteel wordt vernieuwd met o.a. een representatieve entree, luxe open trap en strakke vloeren en wanden, bevindt zich op het bedrijventerrein Paardenveld in IJsselstein.
Op het bedrijventerrein zijn bekende ondernemingen gevestigd, zoals: Kwantum, Welkoop, Gamma, Monkey Town, Terberg,... Meer informatie
Algemeen
Het vrijstaande bedrijfspand, waarvan de kantoorzijde momenteel wordt vernieuwd met o.a. een representatieve entree, luxe open trap en strakke vloeren en wanden, bevindt zich op het bedrijventerrein Paardenveld in IJsselstein.
Op het bedrijventerrein zijn bekende ondernemingen gevestigd, zoals: Kwantum, Welkoop, Gamma, Monkey Town, Terberg,... Meer informatie
-
Kenmerken
Alle kenmerken Type object Bedrijfshal Bouwperiode 1990 Status Nieuw in verhuur Aangeboden sinds Donderdag 12 maart 2026 -
Locatie
Kenmerken
| Overdracht | |
|---|---|
| Referentienummer | 00228 |
| Huurprijs | € 8.750,- per maand |
| Status | Nieuw in verhuur |
| Aanvaarding | In overleg |
| Aangeboden sinds | Donderdag 12 maart 2026 |
| Bouw | |
|---|---|
| Type object | Bedrijfshal |
| Soort bouw | Bestaande bouw |
| Bouwperiode | 1990 |
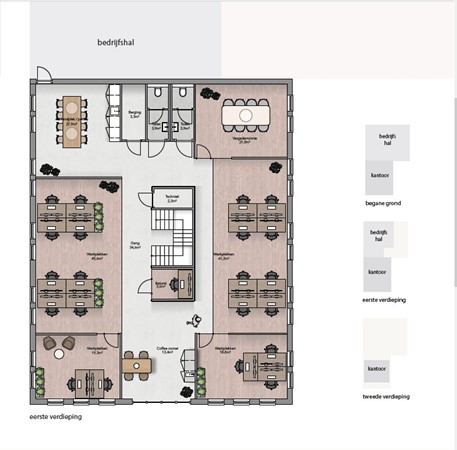
| Oppervlaktes en inhoud | |
|---|---|
| VVO | 400 m² |
| In units vanaf | 400 m² |
| Kantoor oppervlakte | 533 m² |
| Totale verhuurbare vloeroppervlakte | 933 m² |
| Vrije hoogte | 6 m. |
| Draagvermogen | 1.500 kg/m² |
| Uitrusting | |
|---|---|
| Aantal parkeerplaatsen | 15 |
| Uitrusting | Overheaddeuren |
| Heeft een kantoor | Ja |
| Kadastrale gegevens | |
|---|---|
| Kadastrale aanduiding | Ijsselstein C 1572 |
Beschrijving
Merianweg 1, 3401 MR te IJsselstein.
Algemeen
Het vrijstaande bedrijfspand, waarvan de kantoorzijde momenteel wordt vernieuwd met o.a. een representatieve entree, luxe open trap en strakke vloeren en wanden, bevindt zich op het bedrijventerrein Paardenveld in IJsselstein.
Op het bedrijventerrein zijn bekende ondernemingen gevestigd, zoals: Kwantum, Welkoop, Gamma, Monkey Town, Terberg, Aldi en de Plus.
Het pand ligt op 10 minuten lopen van het gezellige centrum van IJsselstein, met een ruim aanbod aan cultuur, winkels en horeca.
Bereikbaarheid
Het object is vanaf rijksweg A2 bereikbaar. Het bedrijventerrein is per openbaar vervoer bereikbaar middels bus- en tramverbindingen van en naar Utrecht.
Vloeroppervlak
Het totale verhuurbare vloeroppervlak bedraagt circa 1.023 m², als volgt verdeeld:
- kantoorruimte: circa 533 m²;
- bedrijfsruimte: circa 400 m²;
- entresol: circa 90 m².
De vermelde metrage is uitsluitend indicatief. Het object is niet conform de meetnorm van het normblad NEN 2580 ingemeten en derhalve kan geen enkel recht worden ontleend aan de genoemde metrages.
Opleveringsniveau en voorzieningen
Het object wordt schoon en ontruimd aangeboden met o.a. de volgende voorzieningen:
Kantoor
- representatieve entree;
- betonnen vloer;
- optioneel systeemplafonds met ingebouwde verlichtingsarmaturen;
- radiatoren;
- nieuw trappenhuis;
- pantry (stelpost);
- nieuwe toiletunits per verdieping.
Bedrijfshal
- betonnen vloer draagvermogen 1.500 kg/m²:
- vrije hoogte circa 6 m;
- elektrische overheaddeur;
- kraanbaan;
- 3 X 50 ampere .
-
Parkeren
15 parkeerplaatsen op eigen terrein.
Gebruiksmogelijkheden
Bedrijfs- en kantoorruimte. Het bedrijfsgebouw is momenteel in gebruik als kantoor- en bedrijfsruimte en is door zijn bestemming geschikt voor groothandels en technische ondernemingen.
Huurprijs
Bedrijfs-en kantoorruimte: EUR 105.000,- per jaar, EUR 8.750,- per maand te vermeerderen met BTW.
Huurprijsaanpassing
Jaarlijks, op basis van de wijziging van het maandprijsindexcijfer, volgens de consumentenprijsindex “alle huishoudens” (2025 = 100), gepubliceerd door het Centraal Bureau voor de Statistiek (CBS).
Huurtermijn
5 + 5 verlengingsjaren.
Betalingen
Huur en servicekosten inclusief BTW per kwartaal vooruit.
BTW
Indien huurder niet aan het “90% criterium” voldoet, zal er van rechtswege sprake zijn van omzetbelasting vrijgestelde verhuur. Alsdan wordt de overeengekomen kale huurprijs, exclusief omzetbelasting, zodanig verhoogd dat het voor verhuurder ontstane financiële nadeel wordt gecompenseerd.
Verrekenbaar voorschot servicekosten
EUR nader te bepalen per m² per jaar, te vermeerderen met BTW, als verrekenbaar voorschot op de vergoeding voor volgende leveringen en diensten:
- onderhoud en periodieke controle van verwarmings- en/of luchtbehandelingsinstallatie(s);
- idem van hydrofoorinstallatie;
- idem van brandmelder-, gebouwbewaking-, storingsmelder- en noodstroominstallatie(s);
- onderhoud overheaddeur;
- onderhoud kraanbaan;
- administratiekosten ad 5% over de hierboven genoemde leveringen en diensten.
Gas, water en elektra verbruik rechtstreeks te voldoen bij desbetreffende nuts bedrijven.
Energielabel
Energielabel wordt momenteel aangevraagd.
Zekerheidstelling
Bankgarantie of waarborgsom ter grootte van drie maanden huur inclusief servicekosten en BTW.
Aanvaarding
Medio 2e kwartaal 2026.
Overige condities
Huurovereenkomst op basis van het standaard model van de Raad voor Onroerende Zaken (ROZ).
Bovenstaande projectinformatie is onder voorbehoud goedkeuring directie opdrachtgever.
De vermelde informatie is van algemene aard en is niet meer dan een uitnodiging om in onderhandeling te treden. Aan de inhoud van deze informatie kunnen geen rechten worden ontleend.
Algemeen
Het vrijstaande bedrijfspand, waarvan de kantoorzijde momenteel wordt vernieuwd met o.a. een representatieve entree, luxe open trap en strakke vloeren en wanden, bevindt zich op het bedrijventerrein Paardenveld in IJsselstein.
Op het bedrijventerrein zijn bekende ondernemingen gevestigd, zoals: Kwantum, Welkoop, Gamma, Monkey Town, Terberg, Aldi en de Plus.
Het pand ligt op 10 minuten lopen van het gezellige centrum van IJsselstein, met een ruim aanbod aan cultuur, winkels en horeca.
Bereikbaarheid
Het object is vanaf rijksweg A2 bereikbaar. Het bedrijventerrein is per openbaar vervoer bereikbaar middels bus- en tramverbindingen van en naar Utrecht.
Vloeroppervlak
Het totale verhuurbare vloeroppervlak bedraagt circa 1.023 m², als volgt verdeeld:
- kantoorruimte: circa 533 m²;
- bedrijfsruimte: circa 400 m²;
- entresol: circa 90 m².
De vermelde metrage is uitsluitend indicatief. Het object is niet conform de meetnorm van het normblad NEN 2580 ingemeten en derhalve kan geen enkel recht worden ontleend aan de genoemde metrages.
Opleveringsniveau en voorzieningen
Het object wordt schoon en ontruimd aangeboden met o.a. de volgende voorzieningen:
Kantoor
- representatieve entree;
- betonnen vloer;
- optioneel systeemplafonds met ingebouwde verlichtingsarmaturen;
- radiatoren;
- nieuw trappenhuis;
- pantry (stelpost);
- nieuwe toiletunits per verdieping.
Bedrijfshal
- betonnen vloer draagvermogen 1.500 kg/m²:
- vrije hoogte circa 6 m;
- elektrische overheaddeur;
- kraanbaan;
- 3 X 50 ampere .
-
Parkeren
15 parkeerplaatsen op eigen terrein.
Gebruiksmogelijkheden
Bedrijfs- en kantoorruimte. Het bedrijfsgebouw is momenteel in gebruik als kantoor- en bedrijfsruimte en is door zijn bestemming geschikt voor groothandels en technische ondernemingen.
Huurprijs
Bedrijfs-en kantoorruimte: EUR 105.000,- per jaar, EUR 8.750,- per maand te vermeerderen met BTW.
Huurprijsaanpassing
Jaarlijks, op basis van de wijziging van het maandprijsindexcijfer, volgens de consumentenprijsindex “alle huishoudens” (2025 = 100), gepubliceerd door het Centraal Bureau voor de Statistiek (CBS).
Huurtermijn
5 + 5 verlengingsjaren.
Betalingen
Huur en servicekosten inclusief BTW per kwartaal vooruit.
BTW
Indien huurder niet aan het “90% criterium” voldoet, zal er van rechtswege sprake zijn van omzetbelasting vrijgestelde verhuur. Alsdan wordt de overeengekomen kale huurprijs, exclusief omzetbelasting, zodanig verhoogd dat het voor verhuurder ontstane financiële nadeel wordt gecompenseerd.
Verrekenbaar voorschot servicekosten
EUR nader te bepalen per m² per jaar, te vermeerderen met BTW, als verrekenbaar voorschot op de vergoeding voor volgende leveringen en diensten:
- onderhoud en periodieke controle van verwarmings- en/of luchtbehandelingsinstallatie(s);
- idem van hydrofoorinstallatie;
- idem van brandmelder-, gebouwbewaking-, storingsmelder- en noodstroominstallatie(s);
- onderhoud overheaddeur;
- onderhoud kraanbaan;
- administratiekosten ad 5% over de hierboven genoemde leveringen en diensten.
Gas, water en elektra verbruik rechtstreeks te voldoen bij desbetreffende nuts bedrijven.
Energielabel
Energielabel wordt momenteel aangevraagd.
Zekerheidstelling
Bankgarantie of waarborgsom ter grootte van drie maanden huur inclusief servicekosten en BTW.
Aanvaarding
Medio 2e kwartaal 2026.
Overige condities
Huurovereenkomst op basis van het standaard model van de Raad voor Onroerende Zaken (ROZ).
Bovenstaande projectinformatie is onder voorbehoud goedkeuring directie opdrachtgever.
De vermelde informatie is van algemene aard en is niet meer dan een uitnodiging om in onderhandeling te treden. Aan de inhoud van deze informatie kunnen geen rechten worden ontleend.