| Prijs | € 230.000,- /jr |
| Type object | Bedrijfshal |
| Perceeloppervlakte | 3.499 m² |
| Totale VVO | 2.132 m² |
| Aanvaarding | In overleg |
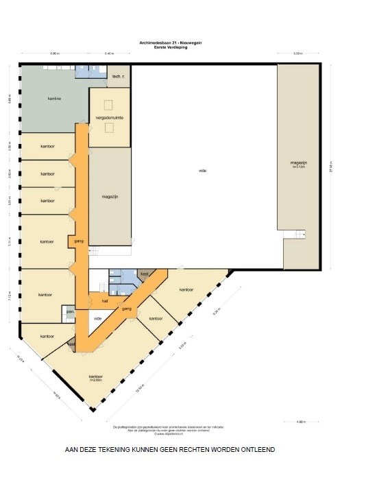
Algemeen Het zelfstandige bedrijfsgebouw is centraal gelegen op bedrijventerrein Plettenburg te Nieuwegein en beschikt over ruime parkeergelegenheid op eigen terrein. Het gebouw heeft energielabel A. De omliggende bebouwing bestaat uit diverse bedrijfsgebouwen met bijbehorende kantoren. Op het bedrijventerrein zijn bekende ondernemingen gevestigd, zoals: Sligro, BMN Bouwmaterialen Nieuwegein, Hella, Translas, Scholman, Thim van der Laan, en GoRoadtrip. Ligging en bereikbaarheid Het object is zowel met de auto als met het openbaar vervoer goed bereikbaar. De verbindingswegen Plettenburgerbaan en Structuurbaan zorgen voor een snelle aansluiting op de A2, A12 en A27, die binnen enkele minuten te bereiken zijn. Op circa 5 minuten loopafstand bevinden zich diverse bushaltes met directe verbindingen naar onder andere Utrecht CS, Houten en Maarssen. Oppervlakte Het bedrijfsgebouw met erf en ondergrond is totaal groot circa 2.132 m² verhuurbaar vloeroppervlak, onderverdeeld in: Begane grond: • circa 559 m² bedrijfsruimte; • circa 130 m² bedrijfs-/magazijnruimte; • circa 120 m² kantoorruimte (in de bedrijfsruimte); • circa 528 m² kantoorruimte. Verdieping: • circa 577 m² kantoorruimte; • circa 74 m² entresolvloer (hout); • circa 144 m² entresolvloer (beton). Het object is conform de meetnorm van het normblad NEN2580 ingemeten. Deelverhuur per verdieping (begane grond of 1e verdieping) is bespreekbaar. Waarbij de parkeerplaatsen na rato worden verdeeld. Parkeren Circa 52 parkeerplaatsen op eigen terrein. Energielabel Het object heeft een energielabel A. Opleveringsniveau Het pand wordt, schoon en ontruimd, opgeleverd in de huidige staat, o.a. voorzien van: Bedrijfsruimte: • vrije hoogte circa 6,5 meter; • glad afgewerkte betonvloer; • vloerbelasting circa 2.000 kg/m2 ; • entresol: vrije hoogte 3,75 m2 en vloerbelasting 400 kg/m2; • krachtstroom; • 1 elektrisch bediende overheaddeur (3,5 m x 4 m); • heaters; • led-verlichting. Kantoorruimte • entree; • handmatig bediende zonwering (screens); • zon reflecterend glas; • systeemplafond voorzien van led-verlichting; • huidige vloerbedekking; • toiletgroep op begane grond en 1e verdieping; • keuken op de begane grond voorzien van diverse apparatuur; • pantry op de 1e verdieping; • bestaande systeemwanden, deels voorzien van glas; • deuren tot plafondhoogte; • centrale verwarming middels radiatoren; • bestaande airco units; • kantoor begane grond voorzien van 2 WTW ventilatie units (elke grote vleugel 1 unit); • kantoor eerste verdieping voorzien van mechanische ventilatie; • bestaande kabelgoten ten behoeve van elektra, data en telefoon, voorzien van huidige elektra, bekabeling en WCD’s; • bestaand alarmsysteem. Buitenterrein • verhard met klinkers; • rijbaan naar de overheaddeur verhard met stelconplaten; • buitenverlichting. Oplevering inclusief huidige capaciteit van de aanwezige nutsaansluitingen voor gas, elektra en water. Gebruikersmogelijkheden Het pand valt onder bestemmingsplan Plettenburg De Wiers 2009 met als bestemming Bedrijf t/m categorie 3B. Een bestemming kan aan verandering onderhevig zijn. Huurder dient zelf informatie in te winnen bij de gemeente over de geschiktheid van het pand voor het beoogde gebruik. Huurprijs De huurprijs bedraagt: • EUR 204.000,- per jaar Bedrijfsgebouw (kantoor en bedrijfsruimte) • EUR 26.000,- per jaar Parkeerplaatsen (52 stuks) De huurprijs te vermeerderen met de verschuldigde omzetbelasting. Servicekosten Nader overeen te komen. Kosten nutsbedrijven Kosten voor gas, water en elektra zijn door huurder rechtstreeks te voldoen aan desbetreffende nutsbedrijven. Ondermaat/Overmaat Indien de opgegeven grootte (ondermaat/overmaat) van de onroerende zaak niet juist is, ontleent geen van partijen daaraan rechten. Huurtermijn 5 (vijf) jaar met een verlengingsperiode van 5 (vijf) jaar. Kortere huurperioden zijn bespreekbaar. Opzegtermijn Uiterlijk 12 (twaalf) maanden voor het aflopen van een huurtermijn. Huurprijsindexering Jaarlijks op 1 januari, voor het eerst op 1 januari 2026, op basis van de wijziging van het maandprijsindexcijfer, volgens de consumentenprijsindex “alle huishoudens” (2015 = 100), gepubliceerd door het Centraal Bureau voor de Statistiek (CBS). Zekerheidsstelling Bankgarantie of waarborgsom ter grootte van een kwartaalverplichting huur plus servicekosten en de over het totaal verschuldigde BTW. Betalingen Huur en servicekosten inclusief BTW per kwartaal vooruit. Aanvaarding De kantoorruimte (begane grond en 1e verdieping) gesitueerd bij de hoofdentree van het object is per direct beschikbaar. De bedrijfsruimte in overleg. B.T.W. Uitgangspunt is BTW-belaste verhuur. Indien huurder niet aan het 90% criterium voldoet, zal er van rechtswege sprake zijn van omzetbelasting vrijgestelde verhuur. Alsdan wordt de overeengekomen kale huurprijs, exclusief omzetbelasting, zodanig verhoogd dat het voor verhuurder ontstane nadeel volledig wordt gecompenseerd. Huurovereenkomst Gebaseerd op het model huurovereenkomst kantoorruimte en andere bedrijfsruimte in de zin van artikel 7:230a BW, zoals is vastgesteld door de Raad voor Onroerende Zaken (ROZ) in 2015. Van deze overeenkomst maken deel uit de bijhorende “Algemene bepalingen huurovereenkomst kantoorruimte en andere bedrijfsruimte in de zin van artikel 7:230A BW”. Bijzonderheden Deze objectinformatie is geheel vrijblijvend en mag niet worden beschouwd als een aanbieding of offerte en wordt verstrekt onder voorbehoud van goedkeuring door verhuurder c.q. verkoper. Aan de in deze brochure vermelde teksten, tekeningen en opgegeven metrages kunnen geen rechten worden ontleend. Ten aanzien van de juistheid van de door ons samengestelde gegevens ervan kunnen wij echter geen aansprakelijkheid aanvaarden. In het geval dat onze beroepsaansprakelijkheidsverzekering aanspraak op uitkering geeft, is aansprakelijkheid beperkt tot het bedrag dat in voorkomend geval onder deze verzekering voor uitkering in aanmerking komt. Alle informatie is geheel vrijblijvend en uitsluitend voor geadresseerde bestemd. Alle gegevens zijn met zorg samengesteld en afkomstig uit ons inziens betrouwbare bron.
| Referentienummer | 00269 |
| Huurprijs | € 230.000,- per jaar |
| Aanvaarding | In overleg |
| Aangeboden sinds | Dinsdag 15 oktober 2024 |
| Laatste wijziging | Donderdag 27 februari 2025 |
| Type object | Bedrijfshal |
| Soort bouw | Bestaande bouw |
| Bouwperiode | 1989 |
| Perceeloppervlakte | 3.499 m² |
| VVO | 689 m² |
| Kantoor oppervlakte | 1.443 m² |
| Totale verhuurbare vloeroppervlakte | 2.132 m² |
| Vrije hoogte | 6,5 m. |
| Draagvermogen | 2.000 kg/m² |
| Lokale voorzieningen | Bank op 2000 meter tot 3000 meter Geldautomaat op 2000 meter tot 3000 meter Restaurant op 500 meter tot 1000 meter Winkel op 1500 meter tot 2000 meter Supermarkt op 1500 meter tot 2000 meter |
| Bereikbaarheid | Bushalte binnen 500 meter Busknooppunt op 2000 meter tot 3000 meter Afrit van de snelweg op 2000 meter tot 3000 meter Tramhalte op 1500 meter tot 2000 meter |
| Energielabel | A |
| Aantal parkeerplaatsen | 52 |
| Uitrusting | Betonvloer Heater Krachtstroom Overheaddeuren Pantry Toilet |
| Heeft een kantoor | Ja |
| Kadastrale aanduiding | Jutpaas D 2159 |
| Eigendomsituatie | Eigen grond |
| Kadastrale aanduiding | Jutphaas D 2162 |
| Eigendomsituatie | Eigen grond |
| Kadastrale aanduiding | Jutphaas D 2160 |
| Eigendomsituatie | Eigen grond |
| Kadastrale aanduiding | Jutphaas D 2161 |
| Eigendomsituatie | Eigen grond |